x
Post
Post
Consult
Consult
IM
IM
Feedback
Feedback
Top
Top
*标题:
*内容描述:
Home Featured Interior Designs Yuanlin Ecological Farm Visitor Center

Turn Back

Design Service Provider: Buntai Architects Go to Homepage >>
Office Location: Liwan District, Guangzhou, Guangdong, China, East Asia
Year of Registration: 2019
Annual Revenue: Below US$1 Million
Likes for Design Service: 0Likes
Project Name: Yuanlin Ecological Farm Visitor Center
Design Service Type: Interior Decoration Design (Floor Plan Layout, Renderings, Construction Drawings)
Project Type: Visitor Center
Design Completion Year: 2024
Total Floor Area: 600 m²
Project Status: Not Started
Project Location: China Guangdong Jiangmen, Guangdong, China, East Asia
Style: Modern
Project Grade: Exquisite (3Star-level)
Project Background
Located in Heshan, Jiangmen, with a total floor area of approximately 600㎡, the project is sited within the farm’s ecological fabric and the cultural context of Lingnan villages. It aims to create a multi-functional visitor hub that integrates services, exhibition, culture, and experience.
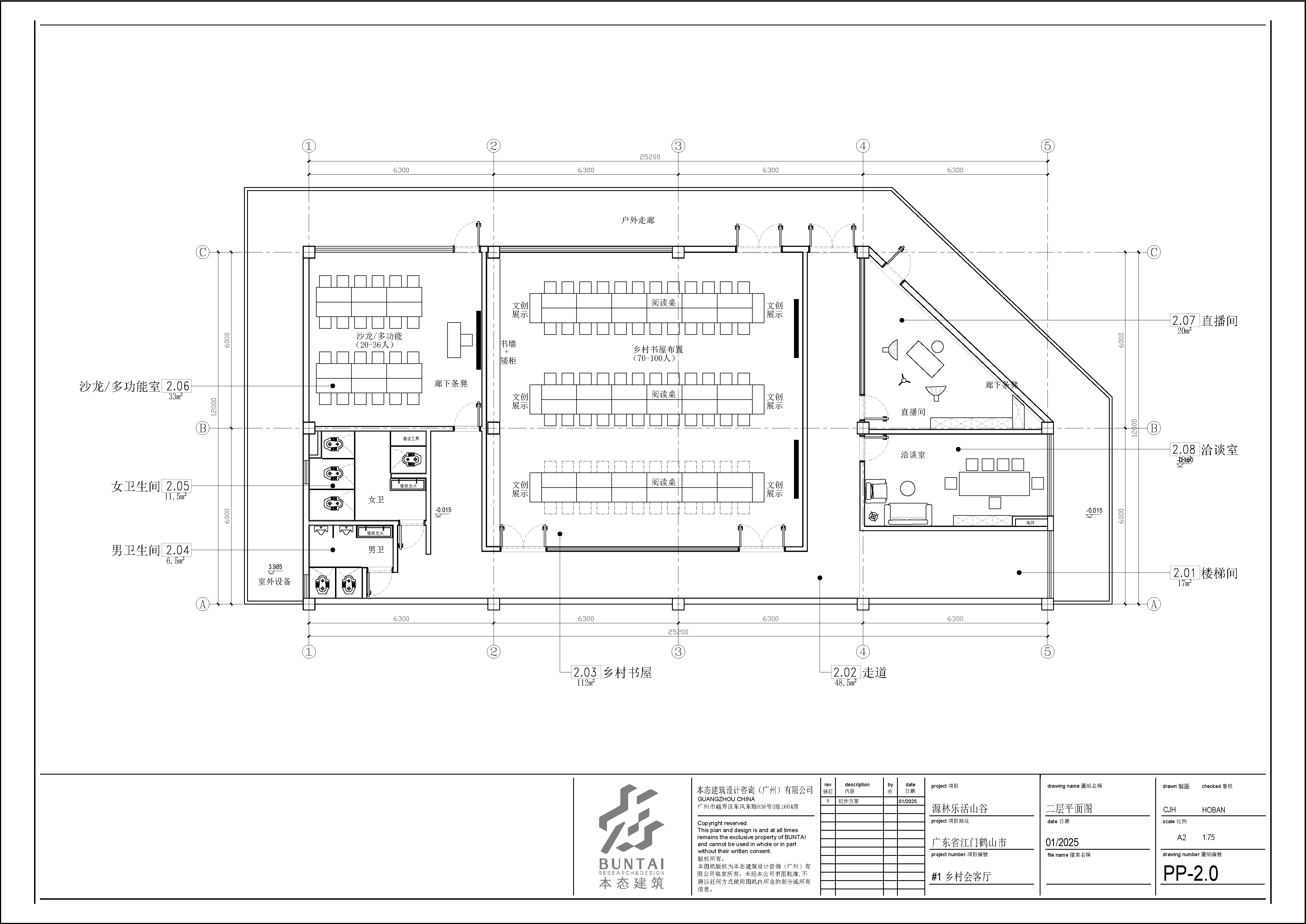
Floor Plan
The ground floor is dominated by service areas, including local product exhibition and sales, leisure, and rest — occupying no less than 60% of the total floor area.
The second floor focuses on culture and office functions, featuring a reading room and a live-streaming room, forming a complete “service – experience – broadcast” sequence.
Interior Renderings
The design philosophy centers on “Ecological Symbiosis · Empowering the Place,” following a “light intervention” approach to achieve a harmonious integration of architecture with the surrounding forest environment.
It addresses both visitor services and the promotion of rural cultural tourism, contributing to rural revitalization. The design theme, “Mountain Dwelling · Farmhouse Hospitality,” embeds ecology and rural culture into every spatial detail.
Small Showroom
Timber, off-white eco-friendly paint, and transparent glass are used to continue the architectural texture of Lingnan villages, combining environmental sustainability with local identity. Vertical timber louvers provide shading and natural ventilation, creating a comfortable experience.
Event Hall & Library
The building appearance echoes the mountain forest landscape, and the indoor space introduces outdoor greenery; the diverse functions adapt to the needs of cultural tourism, realizing the integration of "reception, exhibition and sales, culture and live broadcast"; the localized design highlights the characteristics of Lingnan countryside, and the materials and shapes fit the site temperament, creating a tourist center with both modern texture and rural warmth.
Contents above are uploaded by the design service provider
以上内容均由Buntai Architects上传
已做版权声明,如需转载请获得版权人的许可
Comments
${0} Comments in Total ${0} Comment in Total
No Comments Now
Add a comment
* Language (Spoken):
Please select all your communication languages. This can help connect you with more requirements faster.
Official Recommended Communication Languages (Based on Location/Address You Enter): Please choose your address first. Official recommended communication languages will be displayed after you have selected the address.
Other Communication Languages: You can simply select from some international common languages.
+ Add More You can add other languages that are not shown above.
Cannot be blank !

Verification Failed:

* Language (Written):
Please select all your communication languages. This can help connect you with more requirements faster.
Official Recommended Communication Languages (Based on Location/Address You Enter): Please choose your address first. Official recommended communication languages will be displayed after you have selected the address.
Other Communication Languages: You can simply select from some international common languages.
+ Add More You can add other languages that are not shown above.
Cannot be blank !

Verification Failed:

If your languages are not shown above, please contact us: service@buildmost.com
充值账号:
充值数额:
《素材纠纷提交须知》
Cannot be blank !
支付方式:
Select Your BusinessService Type
Please select your primary businessservice type, some types allow multiple selections
Buyer
Provider
Please enter company name (optional):
Design Service Provider
Services offered:
Architectural Design
Interior Design
Landscape Design
Steel Structure Design
Curtain Wall Design
Other Design Services
Construction & Engineering Service Provider
Engineering Services Offered:
Interior Renovation and Fit-out Engineering
Construction Engineering
Landscape Engineering
Other Engineering Services
For Engineering Projects:
Building Materials, Furniture & Equipment
Product & Equipment Supplier
Can provide:
MEP Equipment
Intelligent Systems & Equipment
Flooring & Wall Materials
Sanitary Ware
Doors, Windows & Curtain Walls
Furniture
Lighting
Artworks
Hospitality Supplies
Other Products & Equipment
Your Main Business Type
Please choose your identity(company or individual):
1.If you have registered a company and can offer related licenses or certificates, you can choose Design Company.
2.If you are an independent designer (You didn't register a company, or you can't offer related company licenses or certificates), you can choose Independent Designer.
Please select your specific identity type(s): Please select your specific identity type(Up to 8):
Please select your specific identity type(s):
Please select your specific identity type(s):
Complete account information
* Mobile Number:
* Verification Code:
* Password:
  Invitation Code:
If you already have an account,
Link Existing Account
  • By Mobile Number
  • By Email
Wrong password
Forgot password ? >
Registration is successful. Welcome to join!
Buyer
I'm looking for design service providers, fit-out/renovation companies, or product suppliers(factories). I will post my requirements.
Post Now >
Provider
I am a design service provider, fit-out/renovation contractor or product supplier. I will complete the verification to start receiving orders online.
Get Verified Now >
Log in with Google
Log in with WeChat
Log in with Alipay
Log in with QQ
Log in with Email/Mobile
Log in via WeChat QR Code
Welcome to BuildMost
By logging in or signing up, you agree to  Terms of Service  and  Privacy Policy
Please read and agree with the BuildMost Terms of Service and BuildMost Privacy Policy first.
You have selected the identities of .
Please confirm whether your company have its own design teams to undertake design service orders from other clients?
Please choose whether you have a design team.
You have selected the identities of .
Please confirm whether your company have its own 施工团队来承接其他客户的工程订单?
请选择是否拥有施工团队
This email/phone number is already registered and linked to .
To unlink, please log in to the original account first, or use a different email/phone number that is not linked.
WeChat QQ Google Facebook Alipay