x
Post
Post
Consult
Consult
IM
IM
Feedback
Feedback
Top
Top
*标题:
*内容描述:
Home Featured Architecture Designs Farm House - Sawat

Turn Back

Design Service Provider: Asad Shahzad Go to Homepage >>
Office Location: Dubai, Dubai, United Arab Emirates, Middle East
Likes for Design Service: 0Likes
Project Name: Farm House - Sawat
Design Service Type: Architecture Planning and Schematic Design
Detail Design Services: Architecture Schematic Design (Floor Plan, Elevation, Section, Renderings)
Project Type: Villa/House
Number of Buildings: 1
Design Completion Year: 2023
Total Floor Area: 300 m²
Project Status: Complete
Building Height: ≤ 100M
Building Structure: Masonry Structure
Project Location: Pakistan Khyber Pakhtunkhwa sawat, Khyber Pakhtunkhwa, Pakistan, South Asia
Style: American Style
Project Grade: Exquisite (3Star-level)
Project Background
Classical Farmhouse Retreat: "Serenity's Edge" Tucked away in a picturesque landscape, "Serenity's Edge" is a classical farmhouse designed to harmonize with nature's splendor. As an architect, I envisioned a tranquil retreat that seamlessly blends traditional charm with modern comforts, inviting residents to unwind and reconnect with the great outdoors.
"Serenity's Edge" is a classical farmhouse designed to nurture the soul. By blending traditional charm with modern comforts and sustainable design elements, this serene retreat offers a chance to reconnect with nature, unwind, and rediscover the beauty of simple living.
Exterior Renderings
- The expansive rear porch, perfect for alfresco dining or relaxation, overlooks a serene swimming pool and sun-kissed lawn. - An outdoor fireplace, nestled within a cozy stone courtyard, beckons gatherings on crisp evenings. - Meandering pathways and lush gardens, designed to attract local wildlife, create a sense of immersion in the natural world.
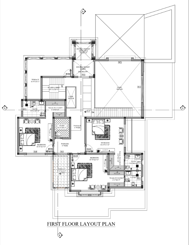
Floor Plan
Upon entering, guests are greeted by a spacious, open-plan living area with soaring ceilings, exposed beams, and a roaring stone fireplace. The interior design balances rustic elegance with refined sophistication, incorporating natural materials, plush textiles, and vintage accents.
Elevation Plan
Architecture and Design Inspired by timeless rural architecture, the farmhouse features a classic gabled roof, rustic stone walls, and warm cedar clapboards. The faade is punctuated by multi-paned windows, allowing an abundance of natural light to pour in and framing breathtaking views of the surrounding countryside.
Section Plan
Nature-Inspired Spaces The farmhouse is carefully positioned to maximize its connection with the surrounding landscape. Expansive windows and sliding glass doors dissolve the boundaries between indoors and outdoors, inviting the beauty of nature to permeate every aspect of life.
Architectural Rendering-Main Gate
In harmony with the farmhouse's natural surroundings, sustainable design elements have been incorporated to minimize its ecological footprint: - High-performance insulation and energy-efficient systems optimize energy consumption. - Rainwater harvesting and greywater reuse systems reduce water waste. - Locally sourced materials and reclaimed wood accents minimize the carbon footprint of construction.
Building Electrical Design Guide/Overview
Tucked away in a picturesque landscape, "Serenity's Edge" is a classical farmhouse designed to harmonize with nature's splendor. As an architect, I envisioned a tranquil retreat that seamlessly blends traditional charm with modern comforts, inviting residents to unwind and reconnect with the great outdoors.
Contents above are uploaded by the design service provider
以上内容均由Asad Shahzad上传
已做版权声明,如需转载请获得版权人的许可
Comments
${0} Comments in Total ${0} Comment in Total
No Comments Now
Add a comment
* Language (Spoken):
Please select all your communication languages. This can help connect you with more requirements faster.
Official Recommended Communication Languages (Based on Location/Address You Enter): Please choose your address first. Official recommended communication languages will be displayed after you have selected the address.
Other Communication Languages: You can simply select from some international common languages.
+ Add More You can add other languages that are not shown above.
Cannot be blank !

Verification Failed:

* Language (Written):
Please select all your communication languages. This can help connect you with more requirements faster.
Official Recommended Communication Languages (Based on Location/Address You Enter): Please choose your address first. Official recommended communication languages will be displayed after you have selected the address.
Other Communication Languages: You can simply select from some international common languages.
+ Add More You can add other languages that are not shown above.
Cannot be blank !

Verification Failed:

If your languages are not shown above, please contact us: service@buildmost.com
充值账号:
充值数额:
《素材纠纷提交须知》
Cannot be blank !
支付方式:
Select Your BusinessService Type
Please select your primary businessservice type, some types allow multiple selections
Buyer
Provider
Please enter company name (optional):
Design Service Provider
Services offered:
Architectural Design
Interior Design
Landscape Design
Steel Structure Design
Curtain Wall Design
Other Design Services
Construction & Engineering Service Provider
Engineering Services Offered:
Interior Renovation and Fit-out Engineering
Construction Engineering
Landscape Engineering
Other Engineering Services
For Engineering Projects:
Building Materials, Furniture & Equipment
Product & Equipment Supplier
Can provide:
MEP Equipment
Intelligent Systems & Equipment
Flooring & Wall Materials
Sanitary Ware
Doors, Windows & Curtain Walls
Furniture
Lighting
Artworks
Hospitality Supplies
Other Products & Equipment
Your Main Business Type
Please choose your identity(company or individual):
1.If you have registered a company and can offer related licenses or certificates, you can choose Design Company.
2.If you are an independent designer (You didn't register a company, or you can't offer related company licenses or certificates), you can choose Independent Designer.
Please select your specific identity type(s): Please select your specific identity type(Up to 8):
Please select your specific identity type(s):
Please select your specific identity type(s):
Complete account information
* Mobile Number:
* Verification Code:
* Password:
  Invitation Code:
If you already have an account,
Link Existing Account
  • By Mobile Number
  • By Email
Wrong password
Forgot password ? >
Registration is successful. Welcome to join!
Buyer
I'm looking for design service providers, fit-out/renovation companies, or product suppliers(factories). I will post my requirements.
Post Now >
Provider
I am a design service provider, fit-out/renovation contractor or product supplier. I will complete the verification to start receiving orders online.
Get Verified Now >
Log in with Google
Log in with WeChat
Log in with Alipay
Log in with QQ
Log in with Email/Mobile
Log in via WeChat QR Code
Welcome to BuildMost
By logging in or signing up, you agree to  Terms of Service  and  Privacy Policy
Please read and agree with the BuildMost Terms of Service and BuildMost Privacy Policy first.
You have selected the identities of .
Please confirm whether your company have its own design teams to undertake design service orders from other clients?
Please choose whether you have a design team.
You have selected the identities of .
Please confirm whether your company have its own 施工团队来承接其他客户的工程订单?
请选择是否拥有施工团队
This email/phone number is already registered and linked to .
To unlink, please log in to the original account first, or use a different email/phone number that is not linked.
WeChat QQ Google Facebook Alipay