x
Post
Post
Consult
Consult
IM
IM
Feedback
Feedback
Top
Top
*标题:
*内容描述:

Turn Back

Design Service Provider: Hardcover Design Go to Homepage >>
Office Location: Nanshan District, Shenzhen, Guangdong, China, East Asia
Likes for Design Service: 0Likes
Project Name: Sushiwen Japanese Restaurant in Zhujiang New Town, Guangzhou
Design Service Type: Interior Decoration Design (Floor Plan Layout, Renderings, Construction Drawings)
Project Type: Restaurant
Project Status: Complete
Project Location: China Guangdong Guangzhou, Guangdong, China, East Asia
Style: Japanese Style
Project Grade: Exquisite (3Star-level)
Project Background
Cooking is the art of life, and space carries life. Using design vocabulary, we can feel the changes in space and perception, arouse inner ripples, and pursue the ultimate beauty of simplicity. The space is displayed one by one from the outside to the inside, and the scenery in the scene is connected and interlocked, and every step is a scene, which enhances the interest and depth of the food.
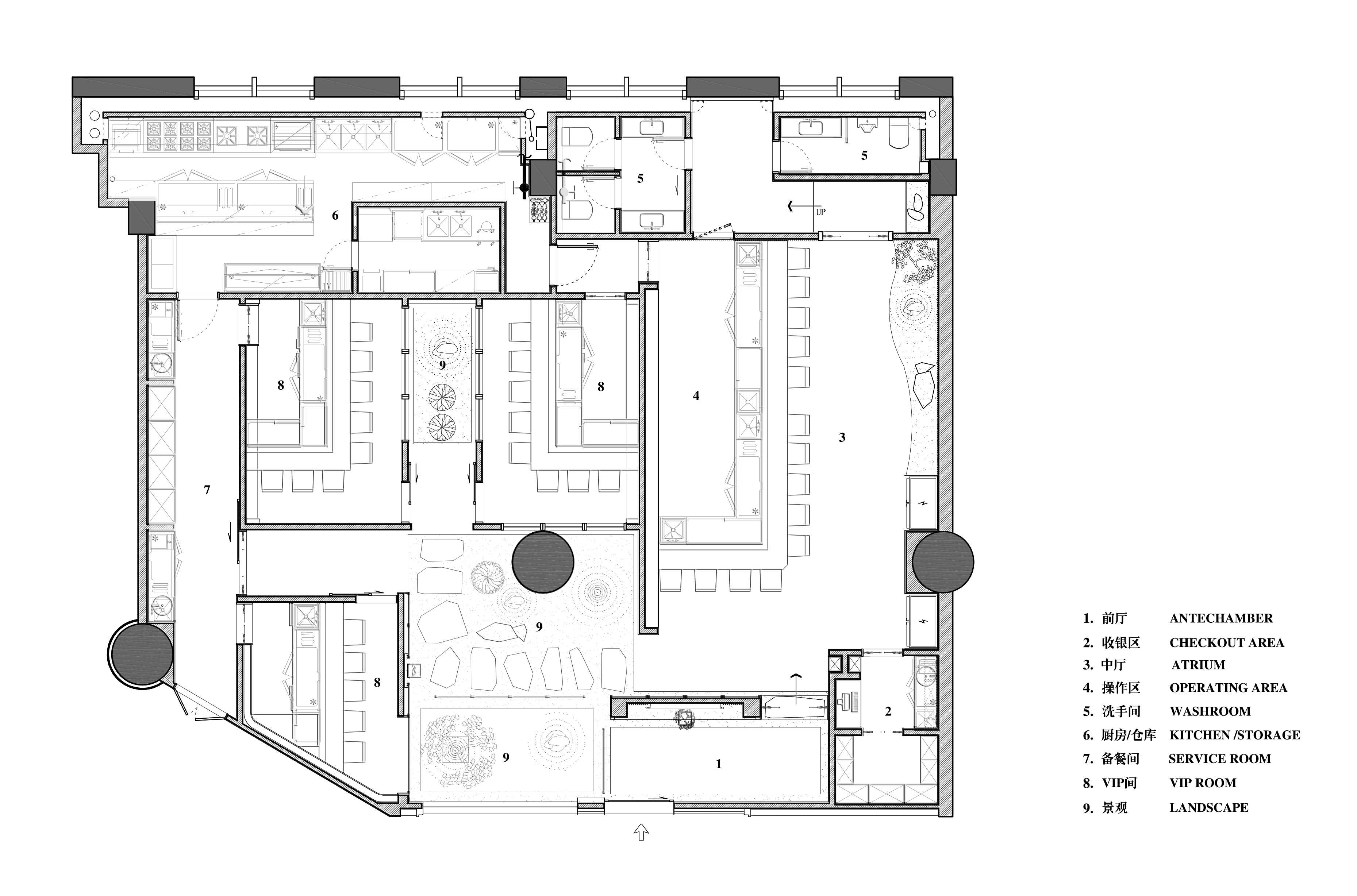
Floor Plan
Interior Renderings
At the entrance of the restaurant, the floor-to-ceiling glass forms a simple framed scene, and the Japanese-style landscape comes into view. Through visual extension, the laminated glass extends the scale connection of different spaces in the room, draws people's sight into it, and builds an interesting relationship between indoor and outdoor.
The natural rough rubble forms a striking contrast with the finely crafted solid wood strips, which are clean and elegant in the eye. The gentle warmth of the solid wood strips comes from the slow feeling of being separated from time and space. From here, it expounds the tranquility and concentration of Japanese materials.
The Panmae cooking station is also the stage for the chefs. The craftsman's hands are steady and agile, presenting the cooking techniques and process of the food to the diners, and also letting the guests feel the aesthetics and temperature of the Japanese food production process.
The cold stone on the wall of the central hall stands out and does not show off. It forms a texture collision with the gentle wood, which accumulates over time and presents spatial traces through material changes.
The passage space material continues the unified semi-transparent laminated silk glass to construct a space boundary defined by a complete faade. The neatly ordered glass walls are like the connection points of the time tunnel, forming the stacking and staggering of the spatial structure, enhancing the visual ductility.
Connected by corridors, slate steps, sandstone platforms, laminated glass, and shoji gates, a variety of dialogue scales are created for connecting spaces, adding an imaginary space extending to a Japanese-style courtyard, making each space independent and unified. overall atmosphere.
The small dry mountain landscape is interlaced with the virtual and the real through the laminated glass, and together with the textured slate path, an indoor "landscape" is created.
The space is displayed one by one from the outside to the inside, and the scenery in the scene is connected and interlocked, and every step is a scene, which enhances the interest and depth of "food". Between square inches, there is nothing in the world.
The use of natural materials such as bamboo, wood and stone interprets the beauty of simplicity and simplicity. It leads guests to feel the natural charm like walking in a Japanese garden.
The design of the L-shaped island combines the on-site operation concept, allowing diners to perceive the depth and depth of the space in the interval between tasting the aftertaste of Japanese food and the time scale.
Spatial components are articulated through simple and subtle textures, creating a sophisticated sensory experience. Wooden elements are arranged on the walls, countertops and seats, and are the key carrier to achieve sensory balance. The overall atmosphere of the space is thus set off clean and elegant.
The craftsman's wisdom, craftsmanship, and the investment of forgetting time are the magic created by simplicity and the embodiment of ingenuity.
WASHROOM
A few simple strokes outline the base of the space, and the clean lines cut through the tranquility of the space and create harmony everywhere.
The withered stone landscape is scattered, and the imprinted space is at a glance.
Contents above are uploaded by the design service provider
以上内容均由Hardcover Design 上传
已做版权声明,如需转载请获得版权人的许可
Comments
${0} Comments in Total ${0} Comment in Total
No Comments Now
Add a comment
* Language (Spoken):
Please select all your communication languages. This can help connect you with more requirements faster.
Official Recommended Communication Languages (Based on Location/Address You Enter): Please choose your address first. Official recommended communication languages will be displayed after you have selected the address.
Other Communication Languages: You can simply select from some international common languages.
+ Add More You can add other languages that are not shown above.
Cannot be blank !

Verification Failed:

* Language (Written):
Please select all your communication languages. This can help connect you with more requirements faster.
Official Recommended Communication Languages (Based on Location/Address You Enter): Please choose your address first. Official recommended communication languages will be displayed after you have selected the address.
Other Communication Languages: You can simply select from some international common languages.
+ Add More You can add other languages that are not shown above.
Cannot be blank !

Verification Failed:

If your languages are not shown above, please contact us: service@buildmost.com
充值账号:
充值数额:
《素材纠纷提交须知》
Cannot be blank !
支付方式:
Select Your BusinessService Type
Please select your primary businessservice type, some types allow multiple selections
Buyer
Provider
Please enter company name (optional):
Design Service Provider
Services offered:
Architectural Design
Interior Design
Landscape Design
Steel Structure Design
Curtain Wall Design
Other Design Services
Construction & Engineering Service Provider
Engineering Services Offered:
Interior Renovation and Fit-out Engineering
Construction Engineering
Landscape Engineering
Other Engineering Services
For Engineering Projects:
Building Materials, Furniture & Equipment
Product & Equipment Supplier
Can provide:
MEP Equipment
Intelligent Systems & Equipment
Flooring & Wall Materials
Sanitary Ware
Doors, Windows & Curtain Walls
Furniture
Lighting
Artworks
Hospitality Supplies
Other Products & Equipment
Your Main Business Type
Please choose your identity(company or individual):
1.If you have registered a company and can offer related licenses or certificates, you can choose Design Company.
2.If you are an independent designer (You didn't register a company, or you can't offer related company licenses or certificates), you can choose Independent Designer.
Please select your specific identity type(s): Please select your specific identity type(Up to 8):
Please select your specific identity type(s):
Please select your specific identity type(s):
Complete account information
* Mobile Number:
* Verification Code:
* Password:
  Invitation Code:
If you already have an account,
Link Existing Account
  • By Mobile Number
  • By Email
Wrong password
Forgot password ? >
Registration is successful. Welcome to join!
Buyer
I'm looking for design service providers, fit-out/renovation companies, or product suppliers(factories). I will post my requirements.
Post Now >
Provider
I am a design service provider, fit-out/renovation contractor or product supplier. I will complete the verification to start receiving orders online.
Get Verified Now >
Log in with Google
Log in with WeChat
Log in with Alipay
Log in with QQ
Log in with Email/Mobile
Log in via WeChat QR Code
Welcome to BuildMost
By logging in or signing up, you agree to  Terms of Service  and  Privacy Policy
Please read and agree with the BuildMost Terms of Service and BuildMost Privacy Policy first.
You have selected the identities of .
Please confirm whether your company have its own design teams to undertake design service orders from other clients?
Please choose whether you have a design team.
You have selected the identities of .
Please confirm whether your company have its own 施工团队来承接其他客户的工程订单?
请选择是否拥有施工团队
This email/phone number is already registered and linked to .
To unlink, please log in to the original account first, or use a different email/phone number that is not linked.
WeChat QQ Google Facebook Alipay