x
Post
Post
Consult
Consult
IM
IM
Feedback
Feedback
Top
Top
*标题:
*内容描述:

Turn Back

Design Service Provider: Osadebamwen Urhuomwen Diamond Go to Homepage >>
Office Location: FCT, Nigeria, West Africa
Likes for Design Service: 0Likes
Project Name: THE STYLISH & ELEGANT VILLA ON ASHLEY DRIVE INTERIOR DESIGN
Design Service Type: Interior Decoration Design (Floor Plan Layout, Renderings, Construction Drawings)
Project Type: Villa/House
Design Completion Year: 2025
Total Floor Area: 150.73 m²
Project Status: Complete
Project Location: United States Georgia Atlanta, Georgia, United States, North America
Style: Modern
Project Grade: Exquisite (3Star-level)
Project Background
The project, located in Atlanta, Georgia, is a compact four-bedroom house designed with an open-plan layout that seamlessly connects the living, dining, and kitchen areas, maximizing light and flow, while prioritizing efficient use of space, modern aesthetics, comfortable private bedrooms, functional service areas, and clear circulation to meet the client’s requirements for a small yet spacious and family-friendly home.
The project, located in Atlanta, Georgia, is a compact four-bedroom house designed with an open-plan layout that seamlessly connects the living, dining, and kitchen areas, maximizing light and flow, while prioritizing efficient use of space, modern aesthetics, comfortable private bedrooms, functional service areas, and clear circulation to meet the client’s requirements for a small yet spacious and family-friendly home.
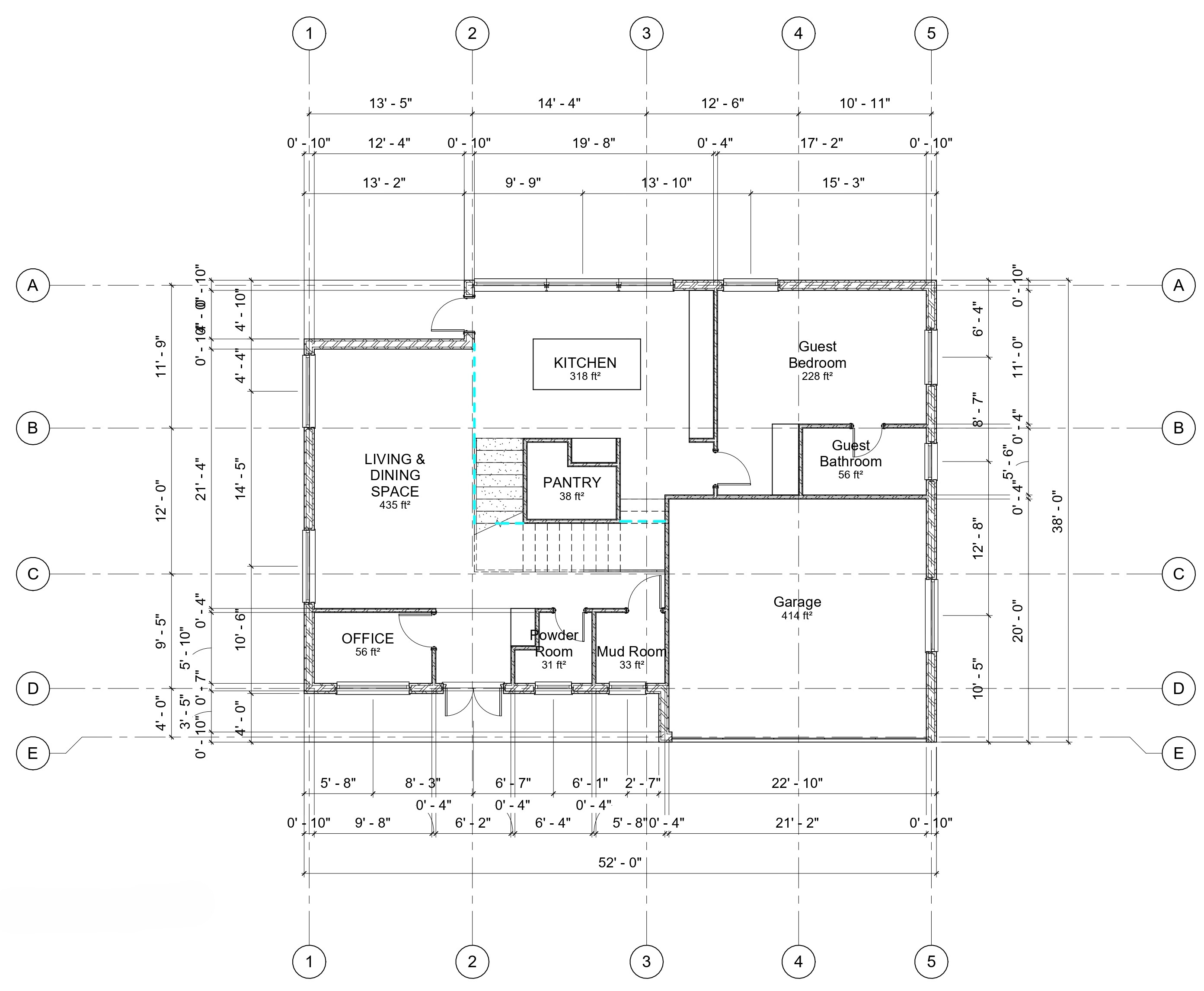
Floor Plan
The project, located in Atlanta, Georgia, is a compact four-bedroom house designed with an open-plan layout that seamlessly connects the living, dining, and kitchen areas, maximizing light and flow, while prioritizing efficient use of space, modern aesthetics, comfortable private bedrooms, functional service areas, and clear circulation to meet the client’s requirements for a small yet spacious and family-friendly home.
The project, located in Atlanta, Georgia, is a compact four-bedroom house designed with an open-plan layout that seamlessly connects the living, dining, and kitchen areas, maximizing light and flow, while prioritizing efficient use of space, modern aesthetics, comfortable private bedrooms, functional service areas, and clear circulation to meet the client’s requirements for a small yet spacious and family-friendly home.
Villa - Bedroom (Master Room)
Master bedroom
Villa - Drawing Room, Living Room
Living room space view from the dinning area
Other Interior Renderings
The Jack and Jill bathroom is a shared space connecting two bedrooms, designed for privacy and efficiency, featuring dual sinks, a shared shower or bathtub, and storage solutions that allow simultaneous use while maintaining a functional and organized layout.
The master bathroom is a private, luxurious space within the master suite, designed for comfort and relaxation, featuring a spacious shower, bathtub, double vanity, and ample storage, with a layout that balances functionality and elegance.
The powder room is a compact, elegantly designed half-bathroom for guests, featuring a toilet and vanity, optimized for convenience, style, and efficient use of space.
The open-plan kitchen is seamlessly integrated with the dining and living areas, designed for functionality and social interaction, featuring efficient work zones, modern cabinetry, and a layout that promotes flow and connectivity throughout the home.
The his walk-in closet is a spacious, organized storage space designed for easy access and functionality, featuring shelving, hanging zones, and drawers to keep clothing and accessories neatly arranged.
The her walk-in closet is a luxurious, well-organized space designed for maximum storage and accessibility, featuring shelving, hanging areas, drawers, and compartments to neatly display clothing, shoes, and accessories.
Contents above are uploaded by the design service provider
以上内容均由Osadebamwen Urhuomwen Diamond上传
已做版权声明,如需转载请获得版权人的许可
Comments
${0} Comments in Total ${0} Comment in Total
No Comments Now
Add a comment
* Language (Spoken):
Please select all your communication languages. This can help connect you with more requirements faster.
Official Recommended Communication Languages (Based on Location/Address You Enter): Please choose your address first. Official recommended communication languages will be displayed after you have selected the address.
Other Communication Languages: You can simply select from some international common languages.
+ Add More You can add other languages that are not shown above.
Cannot be blank !

Verification Failed:

* Language (Written):
Please select all your communication languages. This can help connect you with more requirements faster.
Official Recommended Communication Languages (Based on Location/Address You Enter): Please choose your address first. Official recommended communication languages will be displayed after you have selected the address.
Other Communication Languages: You can simply select from some international common languages.
+ Add More You can add other languages that are not shown above.
Cannot be blank !

Verification Failed:

If your languages are not shown above, please contact us: service@buildmost.com
充值账号:
充值数额:
《素材纠纷提交须知》
Cannot be blank !
支付方式:
Select Your BusinessService Type
Please select your primary businessservice type, some types allow multiple selections
Buyer
Provider
Please enter company name (optional):
Design Service Provider
Services offered:
Architectural Design
Interior Design
Landscape Design
Steel Structure Design
Curtain Wall Design
Other Design Services
Construction & Engineering Service Provider
Engineering Services Offered:
Interior Renovation and Fit-out Engineering
Construction Engineering
Landscape Engineering
Other Engineering Services
For Engineering Projects:
Building Materials, Furniture & Equipment
Product & Equipment Supplier
Can provide:
MEP Equipment
Intelligent Systems & Equipment
Flooring & Wall Materials
Sanitary Ware
Doors, Windows & Curtain Walls
Furniture
Lighting
Artworks
Hospitality Supplies
Other Products & Equipment
Your Main Business Type
Please choose your identity(company or individual):
1.If you have registered a company and can offer related licenses or certificates, you can choose Design Company.
2.If you are an independent designer (You didn't register a company, or you can't offer related company licenses or certificates), you can choose Independent Designer.
Please select your specific identity type(s): Please select your specific identity type(Up to 8):
Please select your specific identity type(s):
Please select your specific identity type(s):
Complete account information
* Mobile Number:
* Verification Code:
* Password:
  Invitation Code:
If you already have an account,
Link Existing Account
  • By Mobile Number
  • By Email
Wrong password
Forgot password ? >
Registration is successful. Welcome to join!
Buyer
I'm looking for design service providers, fit-out/renovation companies, or product suppliers(factories). I will post my requirements.
Post Now >
Provider
I am a design service provider, fit-out/renovation contractor or product supplier. I will complete the verification to start receiving orders online.
Get Verified Now >
Log in with Google
Log in with WeChat
Log in with Alipay
Log in with QQ
Log in with Email/Mobile
Log in via WeChat QR Code
Welcome to BuildMost
By logging in or signing up, you agree to  Terms of Service  and  Privacy Policy
Please read and agree with the BuildMost Terms of Service and BuildMost Privacy Policy first.
You have selected the identities of .
Please confirm whether your company have its own design teams to undertake design service orders from other clients?
Please choose whether you have a design team.
You have selected the identities of .
Please confirm whether your company have its own 施工团队来承接其他客户的工程订单?
请选择是否拥有施工团队
This email/phone number is already registered and linked to .
To unlink, please log in to the original account first, or use a different email/phone number that is not linked.
WeChat QQ Google Facebook Alipay