x
Post
Post
Consult
Consult
IM
IM
Feedback
Feedback
Top
Top
*标题:
*内容描述:

Turn Back

Design Service Provider: Richard Eduardo Guizado Herrera Go to Homepage >>
Office Location: Guayaquil, Guayas, Ecuador, South America
Likes for Design Service: 0Likes
Project Name: "MARINA VALLARTA" OFFICE
Design Service Type: Interior Decoration Design (Floor Plan Layout, Renderings, Construction Drawings)
Project Type: Office
Design Completion Year: 2023
Total Floor Area: 150 m²
Project Status: In Progress
Project Location: Mexico Jalisco Jalisco, Mexico, North America
Style: Modern
Project Grade: Luxury (4Star-level)
Project Background
THE OBJECTIVE IS MAKE A DESIGN WHICH ALLOCATE NEW WORK SPACES IN A HUGE AREA.
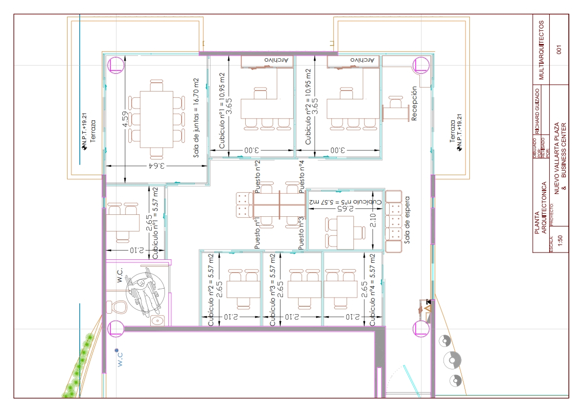
Floor Plan
IN THE FLOOR PLAN YOU CAN IDENTIFY THREE TYPES OF OFFICE FOR THE EXTENSION AND LOCATION RELATED WITH THE ALL PROJECT. THE PRINCIPAL OFFICE WHICH IS THE MOST EXTENSIVE, THE SECONDARY OFFICE WHICH HAS A SEPARATION FROM THE OTHER OFFICES, AND THE SIMPLE CUBICLE THAT IT DOES NOT HAVE SEPARATION AND SHARE THE SAME SPACE WITH OTHER SIMILARS.
Interior Renderings
THIS IS THE ENRANCE OF THE OFFICE, THE RECEPTION AREA, WHERE YOU CAN LOOK THE LUXURY FOR THE LIGHTS AND MATERIALS.
3D White Model(Photo)
IN THE 3D WHITE YOU CAN SEE THE DIFFERENT ELEMENTS THAT THE DESIGN OF THIS OFFICE HAVE TO REPRESENT THE HIERARCHY OF EACH WORK SPACE.
Contents above are uploaded by the design service provider
以上内容均由Richard Eduardo Guizado Herrera上传
已做版权声明,如需转载请获得版权人的许可
Comments
${0} Comments in Total ${0} Comment in Total
No Comments Now
Add a comment
* Language (Spoken):
Please select all your communication languages. This can help connect you with more requirements faster.
Official Recommended Communication Languages (Based on Location/Address You Enter): Please choose your address first. Official recommended communication languages will be displayed after you have selected the address.
Other Communication Languages: You can simply select from some international common languages.
+ Add More You can add other languages that are not shown above.
Cannot be blank !

Verification Failed:

* Language (Written):
Please select all your communication languages. This can help connect you with more requirements faster.
Official Recommended Communication Languages (Based on Location/Address You Enter): Please choose your address first. Official recommended communication languages will be displayed after you have selected the address.
Other Communication Languages: You can simply select from some international common languages.
+ Add More You can add other languages that are not shown above.
Cannot be blank !

Verification Failed:

If your languages are not shown above, please contact us: service@buildmost.com
充值账号:
充值数额:
《素材纠纷提交须知》
Cannot be blank !
支付方式:
Select Your BusinessService Type
Please select your primary businessservice type, some types allow multiple selections
Buyer
Provider
Please enter company name (optional):
Design Service Provider
Services offered:
Architectural Design
Interior Design
Landscape Design
Steel Structure Design
Curtain Wall Design
Other Design Services
Construction & Engineering Service Provider
Engineering Services Offered:
Interior Renovation and Fit-out Engineering
Construction Engineering
Landscape Engineering
Other Engineering Services
For Engineering Projects:
Building Materials, Furniture & Equipment
Product & Equipment Supplier
Can provide:
MEP Equipment
Intelligent Systems & Equipment
Flooring & Wall Materials
Sanitary Ware
Doors, Windows & Curtain Walls
Furniture
Lighting
Artworks
Hospitality Supplies
Other Products & Equipment
Your Main Business Type
Please choose your identity(company or individual):
1.If you have registered a company and can offer related licenses or certificates, you can choose Design Company.
2.If you are an independent designer (You didn't register a company, or you can't offer related company licenses or certificates), you can choose Independent Designer.
Please select your specific identity type(s): Please select your specific identity type(Up to 8):
Please select your specific identity type(s):
Please select your specific identity type(s):
Complete account information
* Mobile Number:
* Verification Code:
* Password:
  Invitation Code:
If you already have an account,
Link Existing Account
  • By Mobile Number
  • By Email
Wrong password
Forgot password ? >
Registration is successful. Welcome to join!
Buyer
I'm looking for design service providers, fit-out/renovation companies, or product suppliers(factories). I will post my requirements.
Post Now >
Provider
I am a design service provider, fit-out/renovation contractor or product supplier. I will complete the verification to start receiving orders online.
Get Verified Now >
Log in with Google
Log in with WeChat
Log in with Alipay
Log in with QQ
Log in with Email/Mobile
Log in via WeChat QR Code
Welcome to BuildMost
By logging in or signing up, you agree to  Terms of Service  and  Privacy Policy
Please read and agree with the BuildMost Terms of Service and BuildMost Privacy Policy first.
You have selected the identities of .
Please confirm whether your company have its own design teams to undertake design service orders from other clients?
Please choose whether you have a design team.
You have selected the identities of .
Please confirm whether your company have its own 施工团队来承接其他客户的工程订单?
请选择是否拥有施工团队
This email/phone number is already registered and linked to .
To unlink, please log in to the original account first, or use a different email/phone number that is not linked.
WeChat QQ Google Facebook Alipay