x
Post
Post
Consult
Consult
IM
IM
Feedback
Feedback
Top
Top
*标题:
*内容描述:

Turn Back

Design Service Provider: DUMO MIMARLIK DANISMANLIK PROJE INSAAT SANAYI VE TICARET LIMITED SIRKETI Go to Homepage >>
Office Location: Sisli, Istanbul, Turkey, Middle East
Year of Registration: 2018
Annual Revenue: Below US$1 Million
Likes for Design Service: 0Likes
Project Name: Duranlar Dairy Industry
Design Service Type: Architecture Planning and Schematic Design
Detail Design Services: Architecture Planning (Master Plan, Renderings) + Architecture Schematic Design (Floor Plan, Elevation, Section, Renderings)
Project Type: Factory
Number of Buildings: ≥2
Design Completion Year: 2022
Total Floor Area: 8500 m²
Project Status: Complete
Building Height: ≤ 100M
Building Structure: Masonry Structure
Project Location: Turkey Burdur Bucak, Burdur, Turkey, West Asia
Style: Modern
Project Grade: Economy (1Star-level)
Design Standards: European Standard
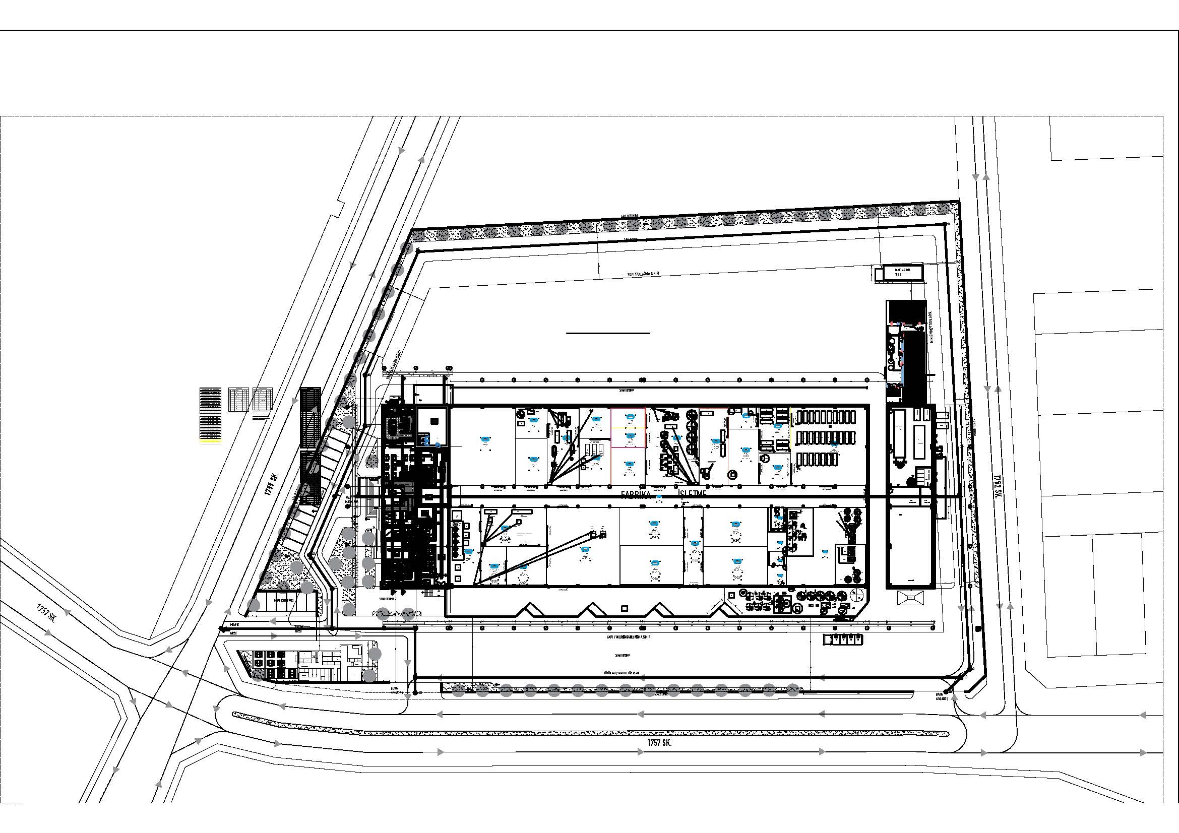
Project Background
The architectural design, construction supervision, and procurement consultancy were carried out by DUMO Architecture. Functionally, the building consists of five main sections: an office building, production facilities, goods receiving and loading area, packaging warehouse, and technical spaces. Locally sourced marble adds a unique aesthetic to the office building faade. Glass material is extensively used on the faade, maximizing natural light due to the building’s advantageous position.
Master Plan Renderings
rendering
Master Plan
master plan
Exterior Renderings
Office Building
Product Receiving and Loading Department
Technical Areas
Product and Packaging Warehouse
Staff Dining Hall and Rest Area
Device Maintenance Corridor Access Area
Floor Plan
First Floor Plan
Second Floor Plan
Roof Plan
Elevation Plan
West View
East View
South View
Noth View
Section Plan
Section A-A
Section B-B
Section C-C
Section D1-D1
Section D2-D2
Section D3-D3
Section D4-D4
Section D5-D5
Section D6-D6
Section D7-D7
Architectural Rendering-Main Gate
Office Building Entrance
Factory Outlet Store Entrance
Architectural Rendering-Parking Entrance
Office Building Parking Entrance
Truck Entrance
Master Plan Specification
The entry and exit points of the site are planned near the intersections. The building is positioned to suit the characteristics of the land, with space left on the side for potential future expansion by placing it closer to the road. Additionally, the factory outlet store is located directly adjacent to the road for easy accessibility.
Architectural Design Description
The factory is located on a 20,000 m² plot. Entry and exit points are positioned at intersections. The office building is situated on the faade facing the intersection at the entrance to the industrial zone. To accommodate potential future expansion, the area currently used as a packaging warehouse has been designed to be removable. Technical areas are located at the rear of the building, while the necessary equipment for operations is housed in a corridor above the production area.
Structure Design Guide/Overview
Reinforced Concrete Prefabricated Structural System
Reinforced Concrete Prefabricated Structural System
Building Electrical Design Guide/Overview
Machine Powers Project
Lighting Elements Project
Socket-Switch, Lighting, Weak Current Projects Example (Office Building Ground Floor)
Water Supply and Drainage Design Guide/Overview
Waste Water-Clean Water Infrastructure Project
HVAC Design Guide/Overview
Ventilation Project Projects Example (Office Building Ground Floor)
Air Conditioning Projects Example (Office Building Ground Floor)
Thermal Energy and Power Engineering Design Guide/Overview
Machine Locations, Machine Lines and Air Conditioning Projects Superposition
Estimated Investment
Estimated Investment - $ 3.000.000
Contents above are uploaded by the design service provider
以上内容均由DUMO MIMARLIK DANISMANLIK PROJE INSAAT SANAYI VE TICARET LIMITED SIRKETI上传
已做版权声明,如需转载请获得版权人的许可
Comments
${0} Comments in Total ${0} Comment in Total
No Comments Now
Add a comment
* Language (Spoken):
Please select all your communication languages. This can help connect you with more requirements faster.
Official Recommended Communication Languages (Based on Location/Address You Enter): Please choose your address first. Official recommended communication languages will be displayed after you have selected the address.
Other Communication Languages: You can simply select from some international common languages.
+ Add More You can add other languages that are not shown above.
Cannot be blank !

Verification Failed:

* Language (Written):
Please select all your communication languages. This can help connect you with more requirements faster.
Official Recommended Communication Languages (Based on Location/Address You Enter): Please choose your address first. Official recommended communication languages will be displayed after you have selected the address.
Other Communication Languages: You can simply select from some international common languages.
+ Add More You can add other languages that are not shown above.
Cannot be blank !

Verification Failed:

If your languages are not shown above, please contact us: service@buildmost.com
充值账号:
充值数额:
《素材纠纷提交须知》
Cannot be blank !
支付方式:
Select Your BusinessService Type
Please select your primary businessservice type, some types allow multiple selections
Buyer
Provider
Please enter company name (optional):
Design Service Provider
Services offered:
Architectural Design
Interior Design
Landscape Design
Steel Structure Design
Curtain Wall Design
Other Design Services
Construction & Engineering Service Provider
Engineering Services Offered:
Interior Renovation and Fit-out Engineering
Construction Engineering
Landscape Engineering
Other Engineering Services
For Engineering Projects:
Building Materials, Furniture & Equipment
Product & Equipment Supplier
Can provide:
MEP Equipment
Intelligent Systems & Equipment
Flooring & Wall Materials
Sanitary Ware
Doors, Windows & Curtain Walls
Furniture
Lighting
Artworks
Hospitality Supplies
Other Products & Equipment
Your Main Business Type
Please choose your identity(company or individual):
1.If you have registered a company and can offer related licenses or certificates, you can choose Design Company.
2.If you are an independent designer (You didn't register a company, or you can't offer related company licenses or certificates), you can choose Independent Designer.
Please select your specific identity type(s): Please select your specific identity type(Up to 8):
Please select your specific identity type(s):
Please select your specific identity type(s):
Complete account information
* Mobile Number:
* Verification Code:
* Password:
  Invitation Code:
If you already have an account,
Link Existing Account
  • By Mobile Number
  • By Email
Wrong password
Forgot password ? >
Registration is successful. Welcome to join!
Buyer
I'm looking for design service providers, fit-out/renovation companies, or product suppliers(factories). I will post my requirements.
Post Now >
Provider
I am a design service provider, fit-out/renovation contractor or product supplier. I will complete the verification to start receiving orders online.
Get Verified Now >
Log in with Google
Log in with WeChat
Log in with Alipay
Log in with QQ
Log in with Email/Mobile
Log in via WeChat QR Code
Welcome to BuildMost
By logging in or signing up, you agree to  Terms of Service  and  Privacy Policy
Please read and agree with the BuildMost Terms of Service and BuildMost Privacy Policy first.
You have selected the identities of .
Please confirm whether your company have its own design teams to undertake design service orders from other clients?
Please choose whether you have a design team.
You have selected the identities of .
Please confirm whether your company have its own 施工团队来承接其他客户的工程订单?
请选择是否拥有施工团队
This email/phone number is already registered and linked to .
To unlink, please log in to the original account first, or use a different email/phone number that is not linked.
WeChat QQ Google Facebook Alipay